Lisbon, Portugal

 

 

Lisbon is Portugal’s capital and the hub of a multifaceted area that appeals to different tastes and senses.

 

“Lisbon was built on seven sunny cinematic hills overlooking the Tagus river, where visitors can enjoy postcard-perfect panoramas that have been crafted over centuries. In Lisbon, the Tagus river is never far away as we explore the history-laden streets of a city that constantly confronts us with its past, as the decorative cobble pavements lead us up from the Praça do Comercio through the 18th century Lower Town to St. George’s Castle.
Getting the feel of a city involves a mixture of observation and experience that only happens when we allow ourselves to be drawn into its daily life and discover its aromas, sounds, music, alley-ways, and food. Portuguese cuisine has many Mediterranean influences and is famous for the freshness of its seafood. In Lisbon, visitors can enjoy a wide variety of Portuguese dishes and the worldwide-famous Portuguese custard tarts.”

 

To find out more about this marvelous city, please visit this page. Wikitravel page.

 

Lisbon Congress Center (CCL) – Main Conference

Praça das Indústrias 1, 1300-307 Lisboa, [maps]

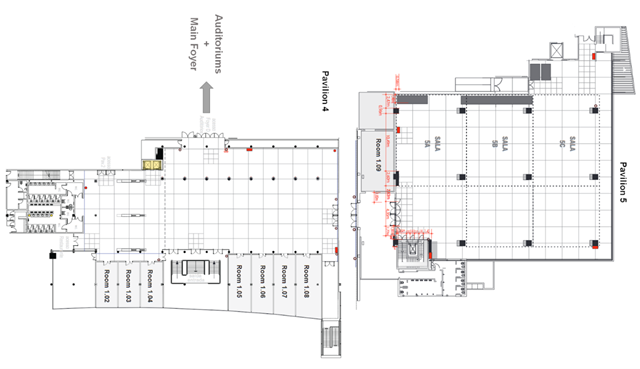
The Lisbon Congress Centre (CCL) is equipped with 5 Pavilions, 8 Auditoriums, 7 Foyers, 34 Meeting Rooms, a restaurant and two underground car parks for 1100 vehicles. All these facilities have up-to-date characteristics to guarantee the success of all events. The building is located in a prime area, near the historical and cultural heritage of Belém, next to the Tagus River, and just a few minutes from the city center. A vast set of public transport options are available just outside the building.

 

The Lisbon Congress Center building is conveniently located near the city center with easy access to all major places. The relevant conference facilities are located on the 1st floor.

 

 

Centro Cultural de Belém (CCB) – Banquet

 

 

The Centro Cultural de Belém is managed by a Foundation whose aim is to promote culture, developing and disseminating new creations in all of their different forms, from classical music to jazz, from theatre to dance, from opera to literature, architecture and cinema.

To find more about the banquet, please visit social events page.

Getting to the Venue

Public Transport (use google maps for transport recommendations in Lisbon)

[Tram] From the city center, take the Metro to Cais do Sodré (end of green line).

Take the 15E tram direction Algés  (15 minutes) .

Get out of the tram in Rua da Junqueira.

Short walk to CCL-conference venue.

 

[Train] From the city center, take the Metro to Cais do Sodré (end of green line).

Catch any train to Cascais.

Get out in station Alcantara – Mar (2 stops).

Walk 15 minutes to CCL-conference venue.

 

[Popular Ride sharing apps]

Uber, Bolt, Free Now

 

COVID-19 Regulations

COVID-19 regulation is in constant change.

 

To check the most up-to-date information about COVID, please refer to:
https://www.visitportugal.com/en/content/covid-19-measures-implemented-portugal.